
As most writers can attest to, I’m scraping the bottom of the barrel, when it comes to an income. That said, I’m also heading into retirement. This doesn’t mean I will stop what I love to do (writing stories or screenplays) but it’s important to plan ahead.
Recently, I’ve been weighing out the option of living in a Tiny Home, such as a prefab cabin.
In Canada, building a cabin or a tiny home with freehold land sounds like a lucrative opportunity. Owning your own property with a cabin nestled in the forest is something I look forward to everyday. The thought of writing my screenplays in seclusion from the hustle and bustle of a city, appeals to my sanity. But the enormous cost could set you back around $500,000 in Canadian currency. But, I’m resilient in making this cabin project the fraction of the cost then your average home on a typical acreage. It’s a feasible possibility, if you’re willing to go small.
In other words, think Tiny Homes.
Today’s real estate costs of any house in the Canadian market is sure to cost from $400,000 to over millions, depending on your location. But, if you’re ready to downsize there are other affordable options. Tiny homes sound good, but be vigilant and watch out for those hidden costs, sure to rob your pockets of every last penny you own.
Or worse, coming up short!
Another hurdle we all face is a mortgage. Let’s face it. Unless you’re frugal with your money or just plain wealthy, most of us have some kind of mortgage.
It’s a reality in life.
Most Canadians struggle with juggling living expenses, taxes, car payments and a hefty mortgage, robbing their income with very little left. To add insult to injury, Canadian living costs are 25 percent higher, then say, our neighbours in United States. Today, younger folks and retirees are seriously looking into other means of ownership without the burden of taking their first-born child as collateral.
In my early career, I was an architectural drafting technologist.
Back then, we did domestic cookie-cutter homes with the basic site plans. Back then a typical home would sell for around $60,000. The cost since then has soared to unattainable prices from $400,000 and up. Today’s market is screaming for affordable housing project, allowing hard working Canadians to buy a reasonable priced home, without leaving them Lonnie-less. ( Lonnie is our dollar. I know it’s crazy). With Vancouver and Toronto house prices going through the roof, most Canadians can’t afford a home anymore.
THEREFORE…
Backed-to-the-wall, the younger generation are seriously considering their own revolution against the cost of real estate, by accepting the lifestyle of living in a smaller square foot home. Square footage typically from only 100 to 500 sq ft.
In effect… The Tiny Housing Revolution has started !
There’s a whole new Housing Revolution going on. Municipalities, Banks and the Canadian government may be forced to make changes, honouring the people’s choice. And, if the Bank of Canada and government are smart, they will realize the overall benefits for all Canadians. It will mean, more of the population will be able to afford their own home with the possibility of freehold property. With a smaller mortgage, Canadians will have that extra money to keep our economy strong, giving folks ownership and respect with dignity.
As for me, with retirement here, the wolf is knocking on the door.
With downsizing in the projected future and moving back home, I will require a lot of creative thinking, in order for my wife and I to be able to live affordably. I started looking into the reality of owning a small piece of land with a cabin on it, for the fraction of the cost of today’s home. Anyone on retirement (even with RRSP’s and the Canadian Pension) will understand, most will live with a tight income from $25,000 – $35,000 annually ( I’m talking for the average senior citizen).
Hating last minute surprises, it was essential for me to plan ahead.
I decided to breakdown all the costs, including the unforeseeable hidden costs. With scouting the Internet and phoning perspective companies, be it contractors or prefab home developers, it was essential to plan two different scenarios. In this blog, we’ll talk about CABINS KITS VERSES TINY HOMES. For statistics purposes, I will assume most struggling retirees have an annual income of $25,000. Some may have to dip into their RRSP’s or taxable savings, but this scenario will be our base income projection.
Let’s begin with :
CABIN KIT COSTS INCLUDING EXCAVATION – TINY HOME OPTION ONE
NOTE : These are today’s prices as of 2016. We’re also on the assumption you do NOT have any construction experience. In other words, you rely on EXPERIENCED CONTRACTORS or carpenters.
THE BREAK DOWN COST OF A CABIN KIT
I did a lot of research in buying cabins, from kits, park model homes to the impressive new concept, the NOMAD micro homes ( I’ll talk about the NOMAD later on). With that said, I am working on the prices by Knotty Pine Cabins, after much research.
It’s important to do your research and check apples to apples.
If by chance you know a company selling cabins ( in Canada) at a cheaper price, be sure you include the options required below, before you let me know.
Otherwise, let’s begin.
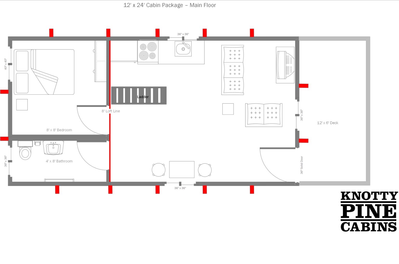
Looking at the CABIN’S MAIN FLOOR PLAN below (Note: ignore the fact the cabin is a 12′ X 24′ Series. We are going to lower our costs by using a 12 Ft WIDE SERIES : 12′ × 20′ but basically the same floor plan with loft will be the same, including the deck and front roof extension).

CABIN SERIES 12 FT WIDE – 12′ X 20′ EXAMPLE :
A ) A cabin kit size at 12 Ft WIDE SERIES : 12′ × 20 – The basic cost starts at $15,200.
B) Add-ons would include Deck & Rail kit at $1650
C) 4ft Front Roof Extension at $1100/ 12′ × 8′
D) Floor and Roof Insulation Kit at $1,760
E) Floor Kit w/ treated skids $1870
F) Interior Wall and Pine Interior Insulation 12′ × 20′ at $4,005
G) Windows and Doors: (NOTE: Window/Door pricing includes precut openings for wall panels) I’m figuring on one Window 24″ × 24″ at a cost of $475 each, plus 3 Windows at 36″ × 36″ at a cost $525 each. Overall total cost for Windows = $2050.
H) One Solid Entrance Door = $ 675.
I) One Inside Wall Partitions: 8 ft Length cost at $1000.
SUBTOTAL FOR CABIN KIT INCLUDING TAX and Delivery Charges ( Not including assembly or unloaded from truck) = $ 32,324
I’m also going on the assumption you require an experienced carpenter or contractor to put the CABIN KIT together.
ADD ON ADDITION COST = $5000. If you’re a handyman, your cost is much lower. (It’s possible to find cheaper labour. Put an ad on line to find a carpenter who’s willing to cut costs for you. But, be careful! Ask for references and photos of jobs he or she has worked on previously).
NEW SUBTOTAL INCLUDES THE CABIN KIT AND NECESSARY ADD-ONS PLUS BUILDING THE STRUCTURE ON YOUR LAND = $37,324
ADD ON : Architectural Drawing Plans (necessary for all permits) = $1500
SUBTOTAL = $38,824
OK – Now we must think about excavation of your lot. That means clearing an area for your cabin and levelling it, in order to place on cabin on. It also means to set your cabin on level concrete piles to structurally hold the weight of the cabin structure. Believe or not finding a clear excavation cost was extremely difficult to find, as it all depends on your raw land and where it’s located. SO – after painstakingly phoning excavation contractors in the area ( Okanagan Valley) I have to conclude the price of excavation can run as much as $10,000. This is just a safe estimate and I really think you can excavate with concrete pilings for $3000. BUT – lets be safe instead of sorry.
SUBTOTAL INCLUDING BUILT CABIN, EXCAVATION AND FOOTINGS = $48,824
OK – Lets NOT forget surveying costs including municipal permits, can run you an extra $5000 (over budget on purpose) Reality could be around $2500, depending on the municipality and lot. So let’s use $2500 as a guideline for starting price.
SUBTOTAL INCLUDES THE ABOVE AND SURVEYING & ALL PERMITS = $51,324.00
NEXT – Utilities from lot line to your cabin cost. This is just the water and electricity, NOT including sewage hookup. Reason is, we will use a compost toilet, which will run you $1500. Each hookup of water and plumbing hookup, electrical and indoor electric finishing is $10,000. AND, once again, this is in extreme cases. You most likely will get away with a $5000 cost for both. Always use professionals, never cheap out thinking you can have a handyman to finish the job. Municipalities require a permit, just for this reason. Permits keep everyone honest and it’s done right and safe ! We will use $5000 as the starting price.
SUBTOTAL INCLUDING THE ABOVE AND UTILITIES = $ 56,324.00
NOW – Lets add the cost of lot or small land = $40,000
GRAND TOTAL OF CABIN WITH LOT = $ 96,324.00 includes the following:
Complete Cabin structure with insulation, flooring, roof, windows, door, over hang roof extension, loft, interior walls including wall insulation and deck with rail kit. A 0.45 aclunder 1 acre of raw land (property in the Okanagan Valley) Freehold (meaning you own the land). Includes Excavation BUT here’s where you can save money if using the NOMAD system.
ADD ON Appliances brings it to $107,000 – ALL IN.
WE are on the assumption you own your furniture. AND bathroom facilities are also NOT included, as mentioned above. Wall-socket fixtures are included in the electrical hookup, as is plumbing included in the water hookup. Realistically, planning ahead you could save yourself $10,000 if you hunt for the best possible price.
SHORT BREAKDOWN:
CABIN KIT PLUS ASSEMBLY AND SMALL EXCAVATION: $ 55,000
RAW LAND PROPERTY: $ 40,000
HOOKUPS : $5000
TOTAL = $100,000
NOW – Let’s look at NOMAD.
NOMAD is the most modern innovative design I’ve seen so far (for Tiny Home concepts) in the architectural community. Nomad company operates in Vancouver, BC with a team of professionals. The streamline use of square footage is remarkable, to say the least.

NOMAD MICRO HOMES
Designer Ian Kent has taken the Tiny Homes concept to the next level. If you can compromise with limited space, it’s indeed a revolutionary streamline of space used. He has taken a 10.5′ x 10.5′ (3.2m x 3.2m) unit called NOMAD utilizing every square inch of space without compromising the need for your living requirements, such as a bathroom, living room, a top loft bed with storage and a European kitchen.
The best part?
You can grow, adding on as many cubes you’ll need in the future.
It’s perfect for everyone concerned, including retirees and students. As for a family, the opportunities are endless to make a comfortable living for your whole family. All for a fraction of the cost. A NOMAD option, known as LIVE, provides a kitchen, bathroom, exterior/interior finishes, plumbing fixtures, loft and light fixtures for a competitive Tiny Home price at $28,000.
A far cry from the rest of the competition, for sure!
The other great incentive with NOMAD, (in my municipal) because it’s only 10 ft X 10 feet, you don’t need permits (This may differ, depending on your location). It looks easy to assemble, but still requires hookup requirements by a certified electrician and plumber. Prefect idea for your mother-in-law suite or living anywhere in the world. As for me, it’s a serious contender to place on my forest property in the Okanagan Valley. It has the ability to be completely off-grid if you like. The options are endless!
My SCENARIO TWO – COST OF PLACING A NOMAD MICRO HOME ON RAW-LAND
Cost of LIVE NOMAD = $28,000 does NOT include taxes and shipping.
Taxes at 5% = $1400
Delivery Charge = $1600
SUBTOTAL = $31,000
ADD PLUMBING & ELECTRICAL HOOKUP : $5000
EXCAVATION: Minimal excavation required ( See why HERE ) cost = $1500 at most.
PROPERTY = $40,000 ( This will never change)
SUBTOTAL INCLUDES LAND, NOMAD, HOOKUP = $76,500
ADD APPLIANCES AND BATHROOM FIXTURES INCLUDING COMPOST TOILET $8000
GRAND TOTAL = $84,500 If you like the NOMAD to become totally OFF-GRID you can add-on $20,000.
LET’S COMPARE
A) Cabin with lot = $90,000 minimal, but can be $110,000
B) NOMAD micro home with lot = $84,500
Each cost is comparable to the other
PROS AND CONS :
Pro : The cabin option is more square footage with a cosy outdoor home. The cabin provides exterior/interior finishes, insulation, a loft and front deck with overhang. The cabins by Knotty Pine look sharp!
Con : Costs more. Even though there’s a place for the bathroom, you must place in the ALL the fixtures. All appliances are an extra cost above the basic cabin price. All light fixture are extra, including outside fixtures.
Pro: NOMAD micro homes “LIVE” provides a kitchen, a bathroom, exterior/interior finishes, plumbing fixtures, loft and light fixtures. Can be built and shipped anywhere in the world.
Con: Very little space. Are you ready and willing to live in a 10 ft X 10 ft unit?
CONCLUSION
Overall, each scenario above have an attractive possibility, at a fraction of the cost for your average home. Most Tiny Homes (even on trailers) will have a starting cost of $30,000 and up. It all comes down to your lifestyle and how much are you going to sacrifice.
If you have a feasible option, not mentioned above, I would love to hear it. Or maybe you found a cheaper price I’m not aware of, preferably in British Columbia ? Whatever may be the case, I’m always open to cost effective prices. Happy building!
By Bari Demers – Screenwriter






Leave a comment